Fenêtres
Portes-fenêtres
Baies vitrées
Portes d'entrée
Protections solaires
Portes de garage
Clôtures et portails
M'identifier
Conseils gratuits

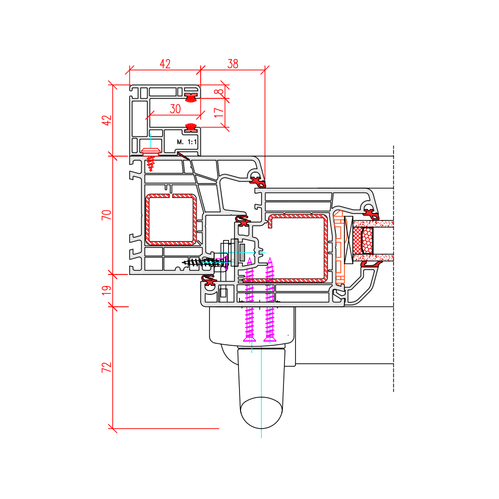
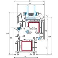
Découvrez ici tous les détails réglementaires, les coupes de profilés, et les plans précis des baies oscillo-coulissantes en PVC disponibles sur notre site internet. Ces plans détaillés vous permettent d'appréhender avec exactitude toutes les dimensions et caractéristiques de nos baies oscillo-coulissantes en PVC. Vous y trouverez tous les profils de vos cadres de baie, facilitant ainsi la préparation pour le montage. La configuration et l'installation de votre baie oscillo-coulissante deviennent ainsi simplifiées. Pour un montage optimal, nous vous conseillons de suivre les directives RAL.























































Veuillez noter que ce sont des croquis détaillés. Si vous souhaitez savoir exactement quels profilés et quels éléments sont utilisés avant de commander, veuillez contacter notre service clients au 02 229 19 29. Nos experts se feront un plaisir de vous aider à configurer vos produits et de répondre à vos questions.
Nous nous réservons le droit d'apporter des modifications techniques.