Fenêtres
Portes-fenêtres
Baies vitrées
Portes d'entrée
Protections solaires
Portes de garage
Clôtures et portails
M'identifier
Conseils gratuits
Pour fenetre24.be, les performances thermiques restent désormais un facteur plus important dans la fabrication des baies soulevantes-coulissantes : peut importe le lieu d'installation de la baie, la perte de chaleur et d'énergie joue un rôle négatif sur les coûts d'entretien de votre lieu de vie et peut alors détériorer votre porte-monnaie. Grâce aux performances thermiques idéales de nos baies soulevantes-coulissantes en aluminium, nous veillons à protèger votre environnement et à réduire les coûts d'énergie.
| Ug du verre W/(m²k) | Uf du cadre W/(m²k) | Uw de la fenêtre - bord chaud du verre isolant en Alu par ex. W/(m²k) | Uw de la fenêtre - bord chaud du verre isolant en PVC foncé par ex. W/(m²k) | Uw de la fenêtre bord chaud du verre isolant Swisspacer V W/(m²k) |
|---|---|---|---|---|
| 1,1 | 2,3 | 1,7 (1,68) | - | 1,6 (1,61) |
| 1,0 | 2,3 | 1,6 (1,61) | - | 1,5 (1,54) |
| 0,7 | 2,3 | 1,4 (1,38) | - | 1,3 (1,31) |
| 0,6 | 2,3 | 1,3 (1,34) | - | 1,2 (1,23) |

MB-77 - Combinaison de profilé sous-jacente
| Ug du verre W/(m²k) | Uf du cadre W/(m²k) | Uw de la fenêtre - bord chaud du verre isolant en Alu par ex. W/(m²k) | Uw de la fenêtre - bord chaud du verre isolant en PVC foncé par ex. W/(m²k) | Uw de la fenêtre bord chaud du verre isolant Swisspacer V W/(m²k) |
|---|---|---|---|---|
| 1,1 | 1,8 | 1,6 (1,59) | - | 1,5 (1,52) |
| 1,0 | 1,8 | 1,5 (1,52) | - | 1,4 (1,45) |
| 0,7 | 1,8 | 1,3 (1,29) | - | 1,2 (1,22) |
| 0,6 | 1,8 | 1,2 (1,21) | - | 1,1 (1,14) |

MB-77 HI - Combinaison de profilé sous-jacente
| Ug du verre W/(m²k) | Uf du cadre W/(m²k) | Uw de la fenêtre - bord chaud du verre isolant en Alu par ex. W/(m²k) | Uw de la fenêtre - bord chaud du verre isolant en PVC foncé par ex. W/(m²k) | Uw de la fenêtre bord chaud du verre isolant Swisspacer V W/(m²k) |
|---|---|---|---|---|
| 1,1 | 2,8 | 1,6 (1,63) | 1,5 (1,54) | 1,5 (1,51) |
| 1,0 | 2,8 | 1,6 (1,55) | 1,5 (1,46) | 1,4 (1,43) |
| 0,7 | 2,8 | 1,3 (1,29) | 1,2 (1,20) | 1,2 (1,17) |

ASE 60 - Combinaison de profilé sous-jacente
| Ug du verre W/(m²k) | Uf du cadre W/(m²k) | Uw de la fenêtre - bord chaud du verre isolant en Alu par ex. W/(m²k) | Uw de la fenêtre - bord chaud du verre isolant en PVC foncé par ex. W/(m²k) | Uw de la fenêtre bord chaud du verre isolant Swisspacer V W/(m²k) |
|---|---|---|---|---|
| 1,1 | 2,2 | 1,6 (1,61) | 1,5 (1,51) | 1,5 (1,47) |
| 1,0 | 2,2 | 1,5 (1,53) | 1,4 (1,43) | 1,4 (1,39) |
| 0,7 | 2,2 | 1,2 (1,19) | 1,1 (1,09) | 1,1 (1,05) |
| 0,6 | 2,2 | 1,1 (1,11) | 1,0 (1,00) | 1,0 (0,96) |
| 0,5 | 2,2 | 1,0 (1,02) | 0,9 (0,92) | 0,9 (0,88) |

ASE 80.HI - Combinaison de profilé sous-jacente
1) Dimension de référence 3500 x 2180mm
2) Uf=1,4 (W/m2K) valeur moyenne
3) Exigences minimales selon l'GEG 2022: Uw =1,3 W/(m2K)
4) Les valeurs Uw < 1,0 W/m2K sont indiquées avec deux décimales selon NBN EN ISO 10077
5) Les valeurs Uw-Werte > 1,0 W/m2K sont indiquées avec une seule décimale selon NBN EN ISO 10077, ci-dessus avec deux décimales pour plus d'informations
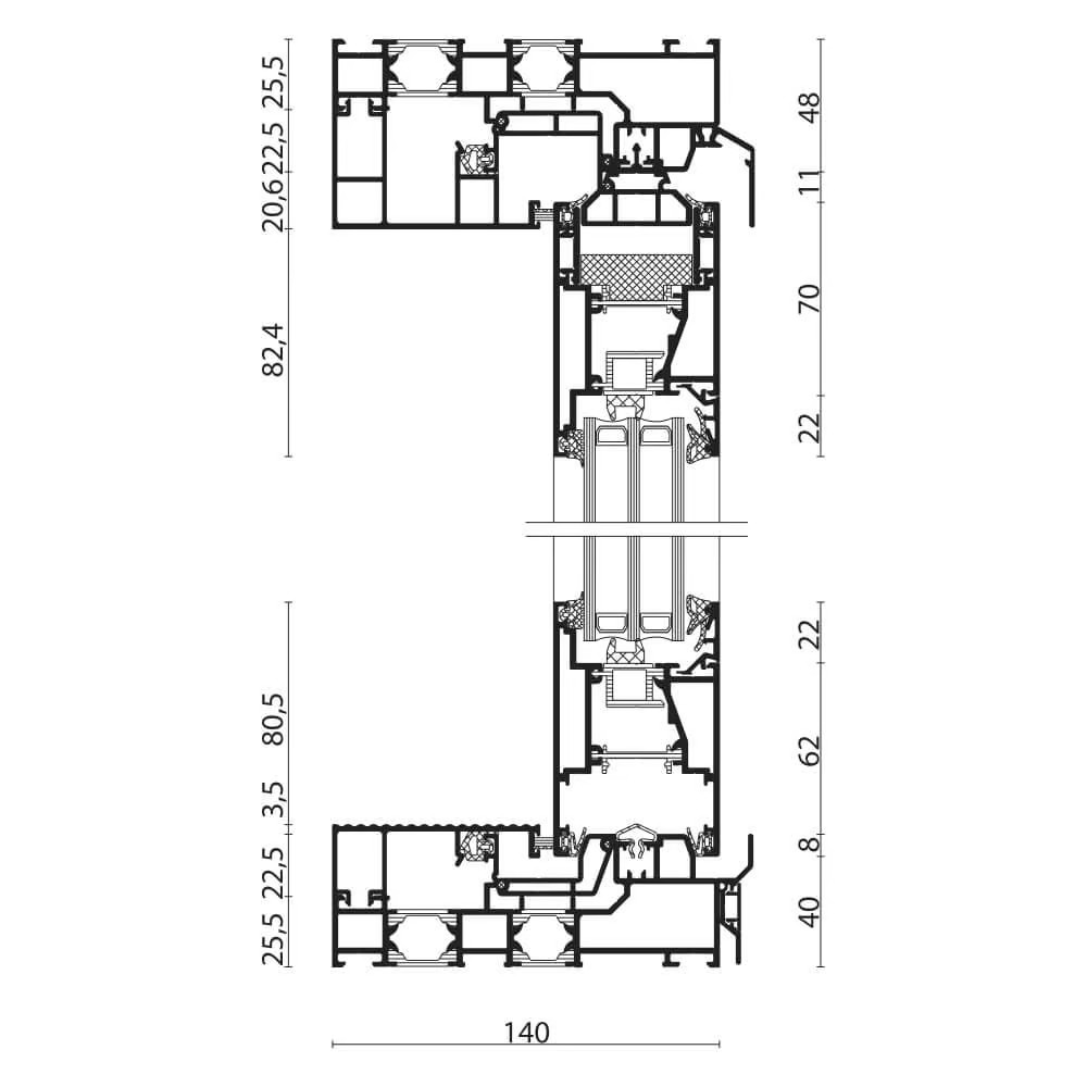
Pour une porte soulevante-coulissante en aluminium, les valeurs Uw se calculent à partir des valeurs U du cadre de fenêtre et du vitrage ainsi que de la perte de chaleur au bord du verre. Pour le calcul, on utilise généralement la taille de fenêtre standard de 1230 x 1480 mm en raison de la comparabilité, mais on peut partir du principe qu'une surface plus grande conduit à une valeur plus faible. Un joint périphérique à rupture de pont thermique sur le vitrage isolant - appelé "bord chaud" - permet d'améliorer encore l'isolation thermique de l'ensemble de la porte.
Les coefficients de transmission thermique d'une porte soulevante-coulissante en aluminium déterminent si une porte coulissante à levage peut être classée comme maison passive et si elle peut bénéficier de subventions associées. Les économies d'énergie sont bénéfiques non-seulement pour l'environnement mais également pour votre porte-monnaie. La différence entre une valeur Uw de 3,5 et une valeur de 0,83 peut déjà représenter une différence de plus de 1000 litres de mazout par an pour une surface de 30 m².