Fenêtres
Portes-fenêtres
Baies vitrées
Portes d'entrée
Protections solaires
Portes de garage
Clôtures et portails
M'identifier
Conseils gratuits
Table des matières
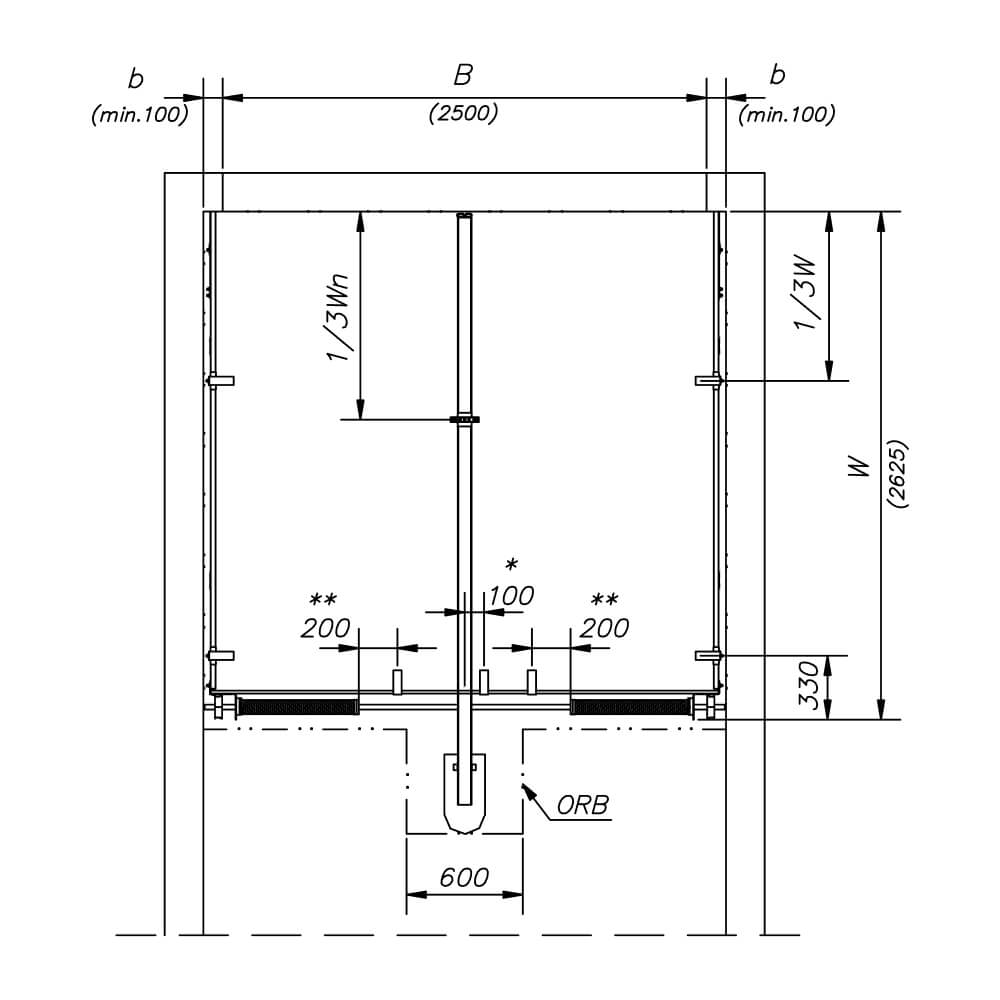
Sur cette page, vous trouverez tous les détails et croquis détaillés relatifs à nos portes de garage sectionnelles. Avant de finaliser votre achat, assurez-vous que la porte choisie correspond aux dimensions requises. Les portes de garage équipées de ressorts de traction ou de ressorts de torsion à l'arrière sont particulièrement adaptées aux garages de petite taille. Les croquis détaillés vous fournissent toutes les informations nécessaires relatives à la structure de la porte, vous permettant ainsi de comparer minutieusement les différents systèmes de levage et de choisir la porte sectionnelle qui convient le mieux à votre garage.
























Ci-dessous, vous trouverez toutes les dimensions et croquis détaillés de nos portes de garage enroulables. Avant de finaliser votre commande, assurez-vous que la porte sélectionnée soit adaptée aux dimensions de votre garage. Nos portes de garage enroulables se distinguent par leur méthode d'installation flexible, que vous souhaitiez l'installer à l'intérieur ou à l'extérieur de votre garage. Les croquis détaillés vous fournissent toutes les informations nécessaires relatives à la structure de la porte, vous permettant ainsi de comparer minutieusement les différents systèmes de levage et de choisir la porte sectionnelle qui convient le mieux à votre garage.








