 Fenêtres
 Fenêtres 
 Portes-fenêtres
 Portes-fenêtres 
 Baies vitrées
 Baies vitrées 
 Portes d'entrée
 Portes d'entrée 
 Protections solaires
 Protections solaires 
 Portes de garage
 Portes de garage 
 Clôtures et portails
 Clôtures et portails 
 M'identifier 
 Conseils gratuits 
Les valeurs Uw indiqués ci-dessous se réfèrent à la taille de l’essai. La taille de l’essai est définie comme étant une fenêtre à un vantail avec une largeur de 1230 mm et une hauteur de 1480 mm. Tous les valeurs Uw des fabricants allemands sont basés sur ce format de fenêtre. Le valeur Uw se dégrade si la fenêtre est plus petite. Le valeur Uw a généralement tendance à s’améliorer avec de plus grandes fenêtres ou des portes-fenêtres.
Aluprof MB-70
Aluprof MB-70 HI
Aluprof MB-86 HI
SCHÜCO AWS 50.NI
SCHÜCO AWS 70.HI
SCHÜCO AWS 75.SI+
SCHÜCO AWS 90.SI+
| Ug du verre | Ug du cadre W/(m²k) | Uw de bord chaud du verre isolant en Alu W/(m²k) | Uw de bord chaud du verre isolant en PVC W/(m²k) | Uw de bord chaud du verre isolant Swisspacer V W/(m²k) | 
|---|---|---|---|---|
| 1,1 | 1,9 | 1,5 (1,54) | - | 1,4 (1,45) | 
| 1,0 | 1,9 | 1,5 (1,48) | - | 1,4 (1,38) | 
| 0,7 | 1,9 | 1,3 (1,28) | - | 1,2 (1,19) | 
| 0,6 | 1,9 | 1,2 (1,22) | - | 1,1 (1,10) | 

Section du profilé MB-70
| Ug du verre | Ug du cadre W/(m²k) | Uw de bord chaud du verre isolant en Alu W/(m²k) | Uw de bord chaud du verre isolant en PVC W/(m²k) | Uw de bord chaud du verre isolant Swisspacer V W/(m²k) | 
|---|---|---|---|---|
| 1,1 | 1,8 | 1,5 (1,46) | - | 1,4 (1,37) | 
| 1,0 | 1,8 | 1,4 (1,40) | - | 1,3 (1,30) | 
| 0,7 | 1,8 | 1,2 (1,20) | - | 1,1 (1,11) | 
| 0,6 | 1,8 | 1,1 (1,14) | - | 1,0 (1,00) | 

Section du profilé MB-70 HI
| Ug du verre | Ug du cadre W/(m²k) | Uw de bord chaud du verre isolant en Alu W/(m²k) | Uw de bord chaud du verre isolant en PVC W/(m²k) | Uw de bord chaud du verre isolant Swisspacer V W/(m²k) | 
|---|---|---|---|---|
| 1,1 | 1,4 | 1,4 (1,41) | - | 1,3 (1,31) | 
| 1,0 | 1,4 | 1,3 (1,34) | - | 1,2 (1,25) | 
| 0,7 | 1,4 | 1,1 (1,14) | - | 1,0 (1,05) | 
| 0,6 | 1,4 | 1,1 (1,08) | - | 1,0 (0,91) | 

Section du profilé MB-86
| Ug du verre | Ug du cadre W/(m²k) | Uw de bord chaud du verre isolant en Alu W/(m²k) | Uw de bord chaud du verre isolant en PVC W/(m²k) | Uw de bord chaud du verre isolant Swisspacer V W/(m²k) | 
|---|---|---|---|---|
| 1,1 | 7,0 | 2,3 | 2,3 | 2,3 | 
| 1,0 | 7,0 | 2,2 | 2,2 | 2,2 | 

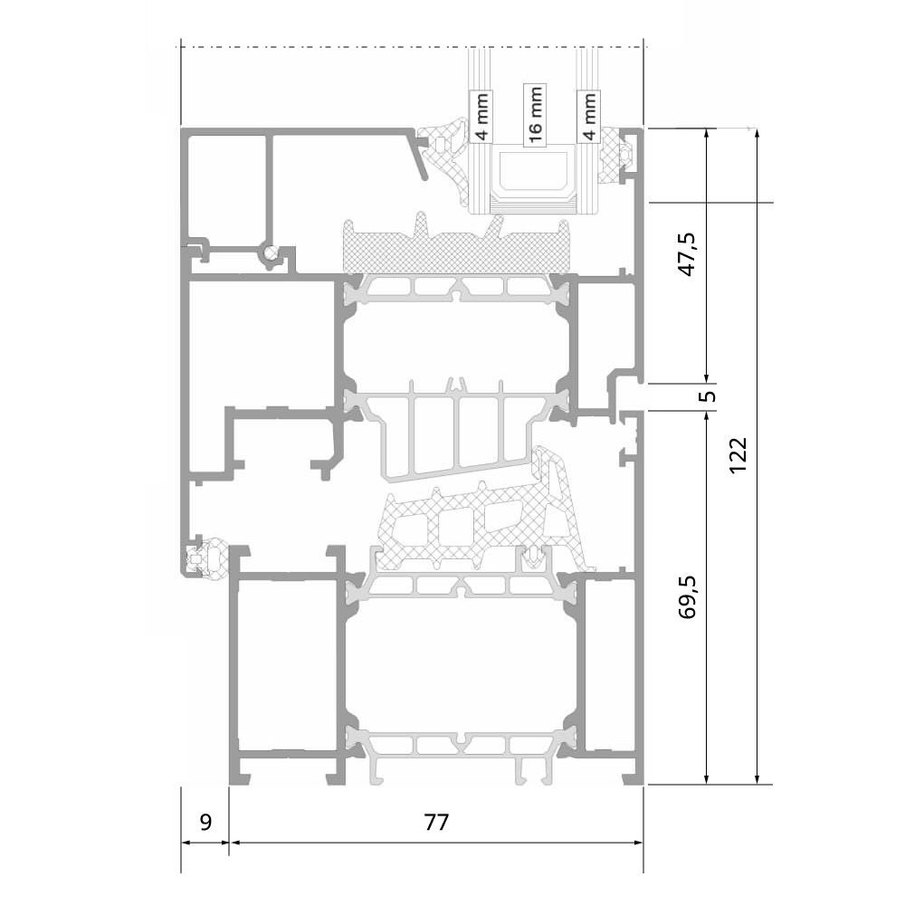
Section du profilé AWS 50.NI
| Ug du verre | Ug du cadre W/(m²k) | Uw de bord chaud du verre isolant en Alu W/(m²k) | Uw de bord chaud du verre isolant en PVC W/(m²k) | Uw de bord chaud du verre isolant Swisspacer V W/(m²k) | 
|---|---|---|---|---|
| 1,1 | 1,7 | 1,6 (1,55) | 1,4 (1,43) | 1,4 (1,39) | 
| 1,0 | 1,7 | 1,5 (1,49) | 1,4 (1,36) | 1,3 (1,33) | 
| 0,7 | 1,7 | 1,3 (1,29) | 1,2 (1,16) | 1,1 (1,13) | 
| 0,6 | 1,7 | 1,2 (1,22) | 1,1 (1,10) | 1,1 (1,06) | 
| 0,5 | 1,7 | 1,1 (1,15) | 1,1 (1,10) | 1,0 (0,99) | 

Section du profilé AWS 70.HI
| Ug du verre | Ug du cadre W/(m²k) | Uw de bord chaud du verre isolant en Alu W/(m²k) | Uw de bord chaud du verre isolant en PVC W/(m²k) | Uw de bord chaud du verre isolant Swisspacer V W/(m²k) | 
|---|---|---|---|---|
| 1,1 | 1,4 | 1,4 (1,43) | 1,3 (1,31) | 1,3 (1,26) | 
| 1,0 | 1,4 | 1,4 (1,36) | 1,2 (1,24) | 1,2 (1,20) | 
| 0,7 | 1,4 | 1,2 (1,16) | 1,0 (1,04) | 1,0 (1,00) | 
| 0,6 | 1,4 | 1,1 (1,10) | 1,0 (0,97) | 0,9 (0,93) | 
| 0,5 | 1,4 | 1,0 (1,03) | 0,9 (0,90) | 0,9 (0,86) | 

Section du profilé AWS 75.SI+
| Ug du verre | Ug du cadre W/(m²k) | Uw de bord chaud du verre isolant en Alu W/(m²k) | Uw de bord chaud du verre isolant en PVC W/(m²k) | Uw de bord chaud du verre isolant Swisspacer V W/(m²k) | 
|---|---|---|---|---|
| 1,1 | 1,1 | 1,4 (1,37) | 1,3 (1,25) | 1,2 (1,21) | 
| 1,0 | 1,1 | 1,3 (1,30) | 1,2 (1,18) | 1,1 (1,14) | 
| 0,7 | 1,1 | 1,1 (1,10) | 1,0 (0,98) | 0,9 (0,94) | 
| 0,6 | 1,1 | 1,0 (1,04) | 0,9 (0,92) | 0,9 (0,88) | 
| 0,5 | 1,1 | 1,0 (0,97) | 0,9 (0,85) | 0,8 (0,81) | 

Section du profilé AWS 90.SI+
1) Les fenêtres dont le coefficient de transfert thermique du vitrage Ug < 1,9 W/m²K sont toujours données avec les dimensions standards de 1,23 m x 1,48 m (NF EN 14351-1: Tableau E1, bote en bas de page “d”).
 2) Les valeurs Uw < 1,0 W/m²K sont présentées conformément avec 2 décimales selon la norme NF EN ISO 10077.
 3) BBC: Bâtiment à basse consommation (maison passive) valeur Uf <= 1,2 W/m²K und valeur Uw <=0,8 W/m²K (Si disponible, voir la désignation BBC dans le tableau)
 4) Les valeurs PSI données ne correspondent pas au tableau E.1/E.2 selon la norme NF EN ISO 10077-1:2006, mais sont des exemples de valeurs réelles calculées correspondant au système d'étanchéité des bords.
 5) Pour information, les valeurs Uw entre parenthèse ne sont pas arrondies
Le valeur Uw d’une fenêtre en aluminium se calcule à partir des différentes valeurs U du cadre de la fenêtre et du vitrage, ainsi que de la perte de chaleur au bord du vitrage. Afin de pouvoir établir des comparaisons, le format de fenêtre standard 1230 x 1480 mm est le plus souvent utilisé lors du calcul. On peut donc partir du principe qu’une fenêtre avec une plus grande surface aura un meilleur valeur.
L'isolation thermique de l'ensemble de la porte est encore améliorée par un joint périphérique à rupture de pont thermique sur le vitrage isolant - appelé « bord chaud ».
Les valeurs de transmission thermique d'une fenêtre en aluminium déterminent si une fenêtre peut être considérée comme adaptée aux maisons passives. L’économie d’énergie ne protège pas seulement l’environnement, elle est aussi bénéfique pour votre compte bancaire.
La différence entre un valeur Uw de 3,5 et un de 0,83 peut être représenté comme une différence de plus de 1000 litres de fioul par an pour une surface de 30 m².